Contact
T3 neuf à louer Villenave d'Ornon
CLT Immobilier > Gestion locative > VILLENAVE D'ORNON, dans résidence de standing, appartement T3 de 66.07m²
Retour

VILLENAVE D'ORNON, dans résidence de standing, appartement T3 de 66.07m²

CE BIEN N EST PLUS DISPONIBLE


Villenave d'Ornon
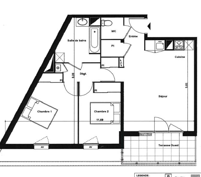
, avenue des Pyrénées, dans une résidence neuve de standing, bel appartement T3 de 66.07m².

Situé au 2ème étage avec ascenseur, il se compose d'une entrée avec rangement, wc séparé, un séjour cuisine ouverte aménagée avec îlot central donnant sur une terrasse de plus de 7m², exposée à l'Ouest.

Un dégagement conduit à l'espace nuit qui comprend 2 chambres, une salle de bains.

L'appartement bénéficie de deux places de parking aériennes. Location mensuelle 80€ à rajouter au montant du loyer.

Local 2 roues, local ordures ménagères.
Chauffage individuel au gaz.
Résidence neuve de standing sécurisée.

A 1 minute de la rocade de Bordeaux. Bus 15 (arrêt : Terrefort) TRAM C : arrêt Villenave Pyrénées.

Ce bien est soumis au dispositif PINEL.

Disponible de suite.

Loyer : 778 € par mois, charges comprises
dont 66 € de charges locatives (provision donnant lieu à régularisation annuelle)
Dépôt de garantie :712 €
Honoraires charges locataire 429 € TTC
dont 99 € pour état des lieux
Voir nos honoraires
Les informations sur les risques auxquels ce bien est exposé sont disponibles sur le site : www.georisques.gouv.fr
Fiche technique
Nous écrire
Les champs indiqués par un astérisque (*) sont obligatoires
Accompagnement client
Avis de valeur offert
Expert de votre secteur
Inscrivez-vous à la newsletter
CLT Immobilier Cestas CLT IMMOBILIER Canejan